3-slaapkamerwoning in Alcaucín

Te koop 4.100.000

Referentie: R4902448

  • Type Villa
  • Slaapkamers 3
  • Badkamers 2
  • Wonen m² 7950 m²

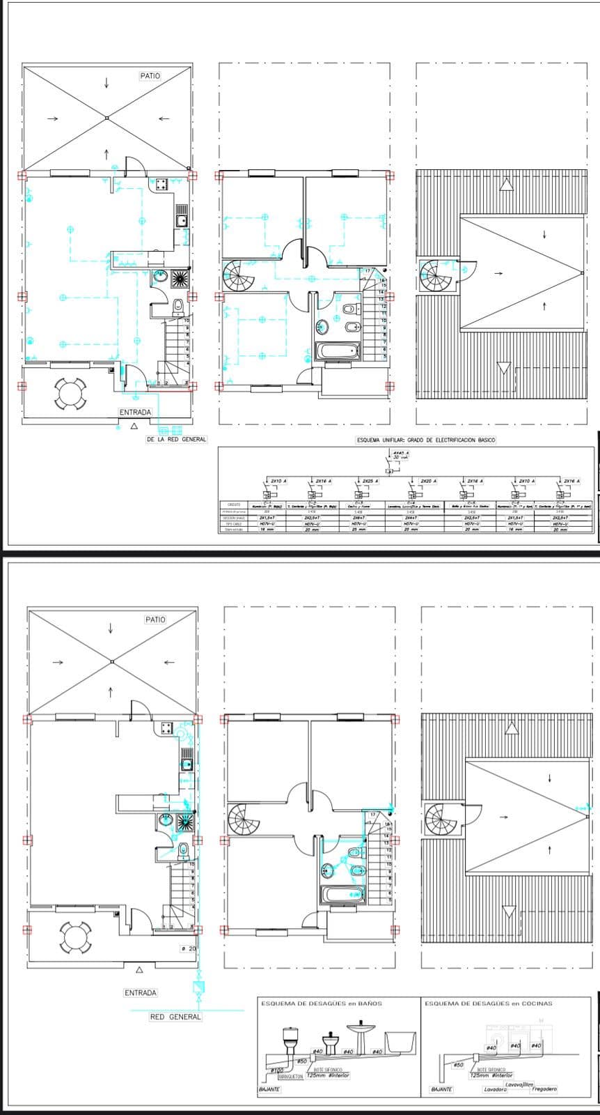
Unieke investeringskans: residentieel project met 52 rijtjeswoningen in Alcaucín, Málaga. Gelegen in een rustige omgeving met bergzicht en nabij de Costa del Sol, klaar om te worden afgerond en te profiteren van de toenemende vraag naar woningen in de regio.

  • 52 rijtjeswoningen, elk met 3 slaapkamers en privégarage
  • Totale landoppervlakte: 7.950 m²
  • Bouwvoortgang tussen 40% en 70%
  • Volledige documentatie inclusief technisch ontwerp en alle benodigde vergunningen om direct met de bouw te hervatten

Prijs: €4.100.000. Het project biedt potentieel voor ontwikkeling als privé wooncomplex, vakantiewoningen of toeristisch resort. De locatie biedt open uitzichten en een rustige omgeving, met nabijheid tot voorzieningen en gemakkelijke toegang tot de Costa del Sol. Neem contact op voor meer informatie of een bezichtiging.

Voorzieningen

  • Bergdorp
  • Dichtbij winkels
  • Dorp
  • Landelijk
  • Privéterras
  • Urbanisatie

Ontdek ook