Kavel A16 in Monte Mayor

Te koop 299.000

Referentie: R5253751

  • Type Kavel
  • Slaapkamers 0
  • Badkamers 0

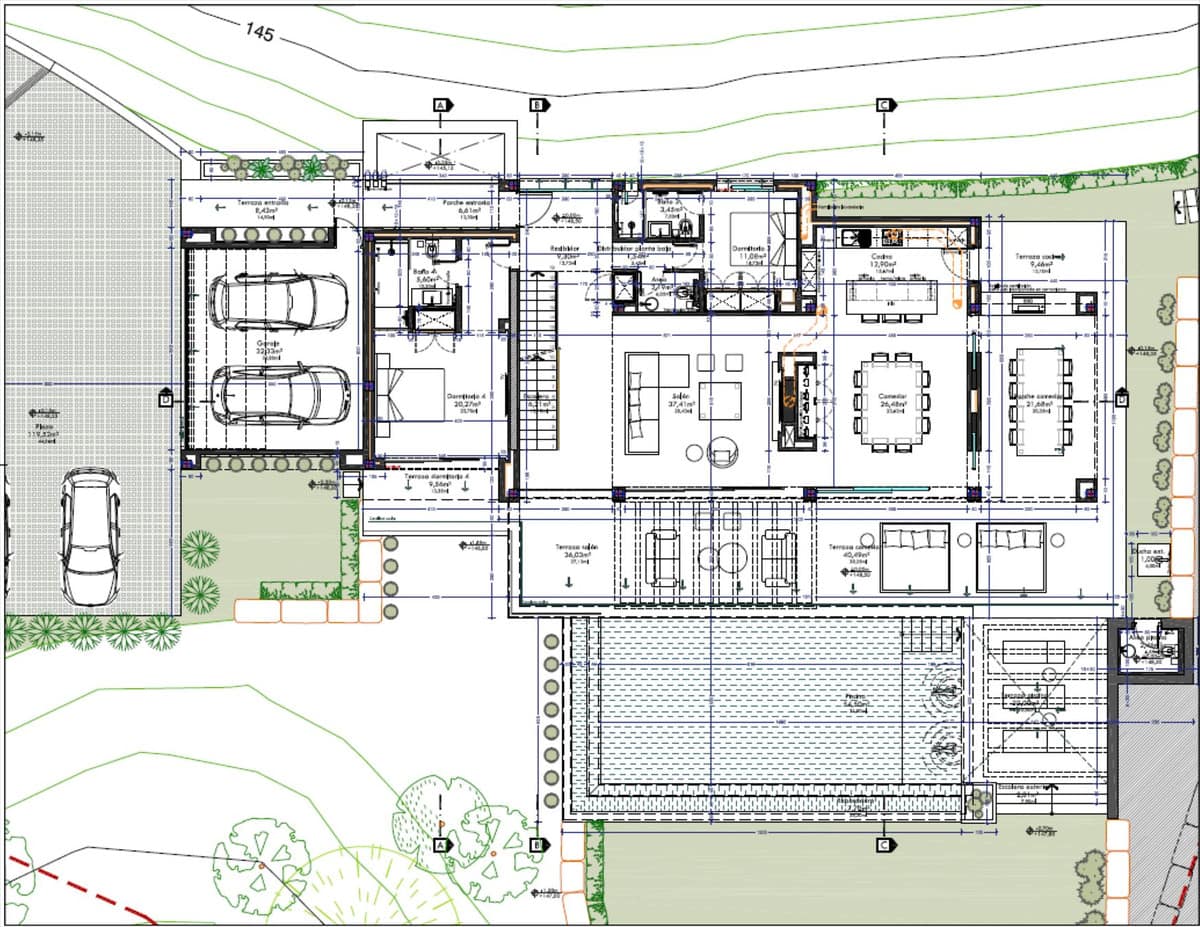
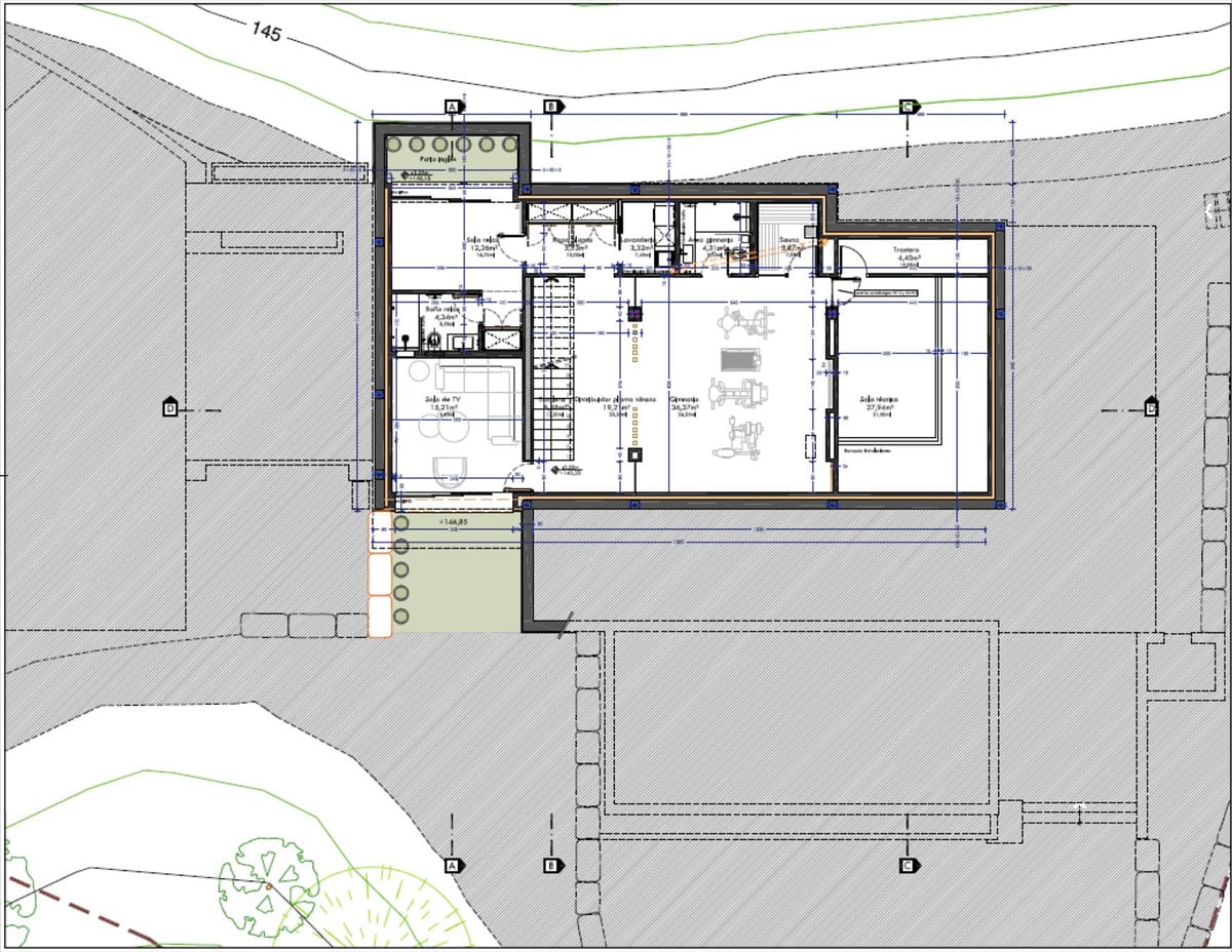
In het hart van een van de meest exclusieve natuurlijke enclaves van Benahavís bevindt zich Kavel A16 in Monte Mayor, met de kans om een volledig op maat gemaakte villa te ontwerpen in een setting waar privacy, rust en landschap centraal staan.

De kavel heeft een totale oppervlakte van 2.870 m² en een maximale bouwruimte van 366 m², met ruimte voor terrassen, tuinen en buitenruimtes die het hele jaar door van het zuidelijke klimaat kunnen genieten. Monte Mayor is een gated community met 24-uurs beveiliging en een gewaardeerd concept met slechts een beperkt aantal woningen op grote kavels, wat zorgt voor meer privacy, rust en een verfijnde uitstraling zonder het gevoel van overvolle bebouwing.

Op korte rijafstand van Benahavís, Marbella en de kust is deze kavel ideaal voor wie natuur, exclusiviteit en de vrijheid zoekt om een unieke woning te creëren. Mis deze kans niet om uw visie werkelijkheid te laten worden. Welkom in uw toekomstige woning in Montemayor!

Ontdek ook