Kavel in El Rosario

Te koop 468.000

Referentie: R4800598

  • Type Kavel
  • Slaapkamers 0
  • Badkamers 0
  • Wonen m² 390 m²

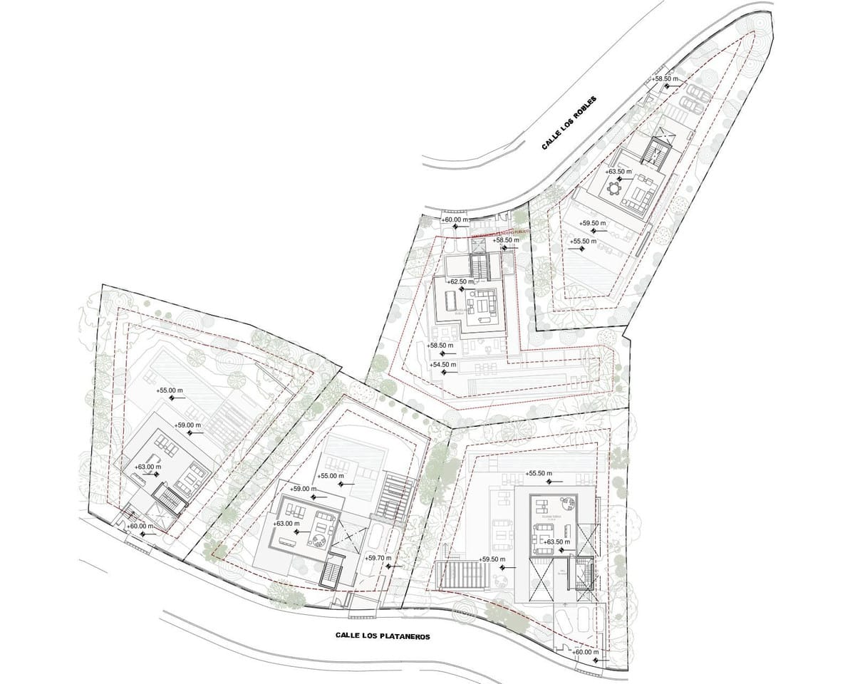
El Rosario Valley is een uniek ontwikkelingsproject in het hart van een prestigieuze gated urbanisatie in Marbella. Hoge beveiligingsnormen, nieuwe wegen, ruime groenvoorzieningen en korte afstand tot stranden, beachclubs, restaurants en winkels; 1 minuut rijden naar Royal Tennis Club.

Het project omvat vijf individuele villa’s, ontworpen door één van de meest gevierde architecten van Marbella. Villa aan Los Plataneros: totaal 1.010 m², gebouwd 390 m² (souterrain en verdieping) plus terrassen en solarium 300 m². Vraagprijs €468.000, referentie R4800598.

Voorzieningen

  • Dichtbij bos
  • Dichtbij golf
  • Dichtbij winkels
  • Dichtbij zee

Ontdek ook