Appartement met 1 slaapkamer aan het strand in Estepona
Referentie: R5324593
-
Type Appartement
-
Slaapkamers 1
-
Badkamers 1
-
Wonen m² 70 m²
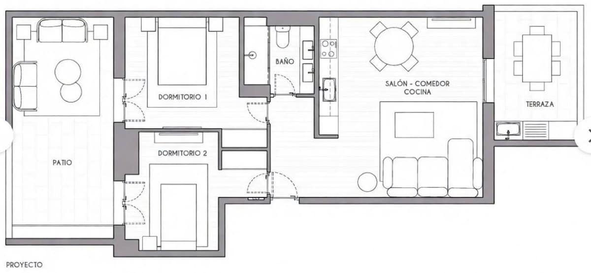
Direct aan het strand in het hart van Estepona ligt dit 1-slaapkamerappartement met directe zee-toegang en een renovatieproject om het om te bouwen naar 2 slaapkamers, inbegrepen in de prijs. Gelegen aan de iconische Avenida España in Puerto de Estepona.
Specificaties:
- Bouwoppervlakte: 70 m²
- 1 slaapkamer (uit te breiden naar 2) | 1 badkamer
- Lichte woonkamer met directe toegang tot terras
- Aparte keuken + wasruimte
- Privéterras en patio
- Inbouwkasten
- Airconditioning
- Eerste verdieping, buitenzijde met lift
- Inbegrepen: privé ondergrondse parkeerplaats; opslagruimte (trastero); volledig architectonisch project om te transformeren naar 2 slaapkamers
Rustig gebouw in het centrum van Estepona met alles op loopafstand: restaurants, winkels, supermarkten, gezondheidscentrum, scholen en de levendige promenade. Slechts een paar stappen van het strand, de jachthaven en alle voorzieningen. Bezichtigen wordt sterk aanbevolen; neem contact op om een privébezichtiging te plannen en het renovatieproject te bekijken.