3-slaapkamerappartement in Fuengirola, Las Lomas 2, Reserva del Higuerón

Te koop 749.000

Referentie: R5249242

  • Type Appartement
  • Slaapkamers 3
  • Badkamers 2
  • Wonen m² 128 m²

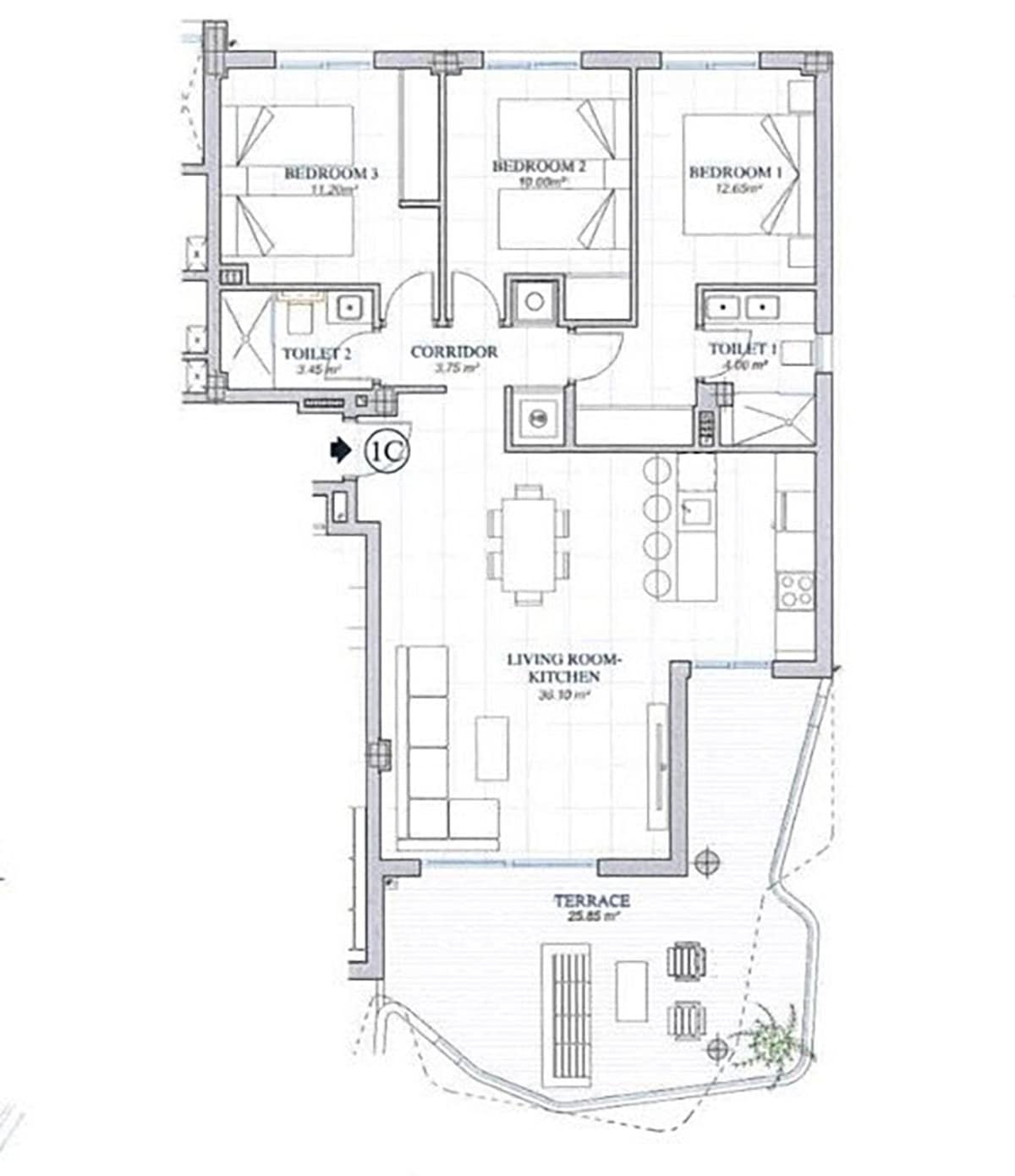
3-slaapkamerappartement in Las Lomas 2, Reserva del Higuerón, Fuengirola. Dit hoogwaardige appartement heeft 128 m² woonruimte en een zuidgericht terras van 26 m² met panoramisch zeezicht. Uitstekende staat, volledig gemeubileerd en met een moderne, functionele indeling. Prijs: 749.000 euro.

De woning beschikt over ondervloerverwarming in de badkamers, een volledig ingerichte keuken, A/C, dubbele beglazing en een marmeren vloer. Verder zijn er een aparte utility room en ondergrondse parkeergelegenheid voor meerdere voertuigen. Het gebouw heeft een lift, afgesloten toegang en 24-uurs bewaking. Op het complex zijn faciliteiten zoals een gemeenschappelijk zwembad, aangelegde tuinen, paddle tennis en een restaurant. De locatie ligt op loopafstand van winkels, strand, openbaar vervoer en scholen. De woning heeft een officiële toeristische vergunning en biedt potentieel voor directe huuropbrengst en een sterke langetermijninvestering.

  • Woonoppervlakte: 128 m²; terras: 26 m²
  • 3 slaapkamers, 2 badkamers
  • Volledig gemeubileerd; keuken volledig ingericht
  • A/C, dubbele beglazing, marmeren vloeren; vloerverwarming in de badkamers
  • Ondergrondse parkeergelegenheid voor meerdere voertuigen; lift; gated access; 24-uurs beveiliging
  • Gemeenschappelijk zwembad, aangelegde tuinen, paddle tennis, restaurant
  • Loopafstand naar winkels, strand, openbaar vervoer en scholen
  • Officiële toeristische vergunning; directe huuropbrengst mogelijk

Voorzieningen

  • 24-uurs beveiliging
  • Afgesloten complex
  • Autoverhuur
  • Badkamer en-suite
  • Bar
  • Berging
  • Bijkeuken
  • Buitenwijk
  • Dichtbij bos
  • Dichtbij openbaar vervoer
  • Dichtbij scholen
  • Dichtbij stad
  • Dichtbij zee
  • Dubbel glas
  • Gym
  • Inbouwkasten
  • Intercom
  • Lift
  • Marmeren vloer
  • Overdekt terras
  • Padelbaan
  • Privéterras
  • Restaurant op locatie
  • Tennisbaan
  • Toegankelijk voor mindervaliden
  • Urbanisatie

Ontdek ook