Kavel in La Cala Golf – Investeringskans

Te koop 1.597.000

Referentie: R5182411

  • Type Kavel
  • Slaapkamers 0
  • Badkamers 0
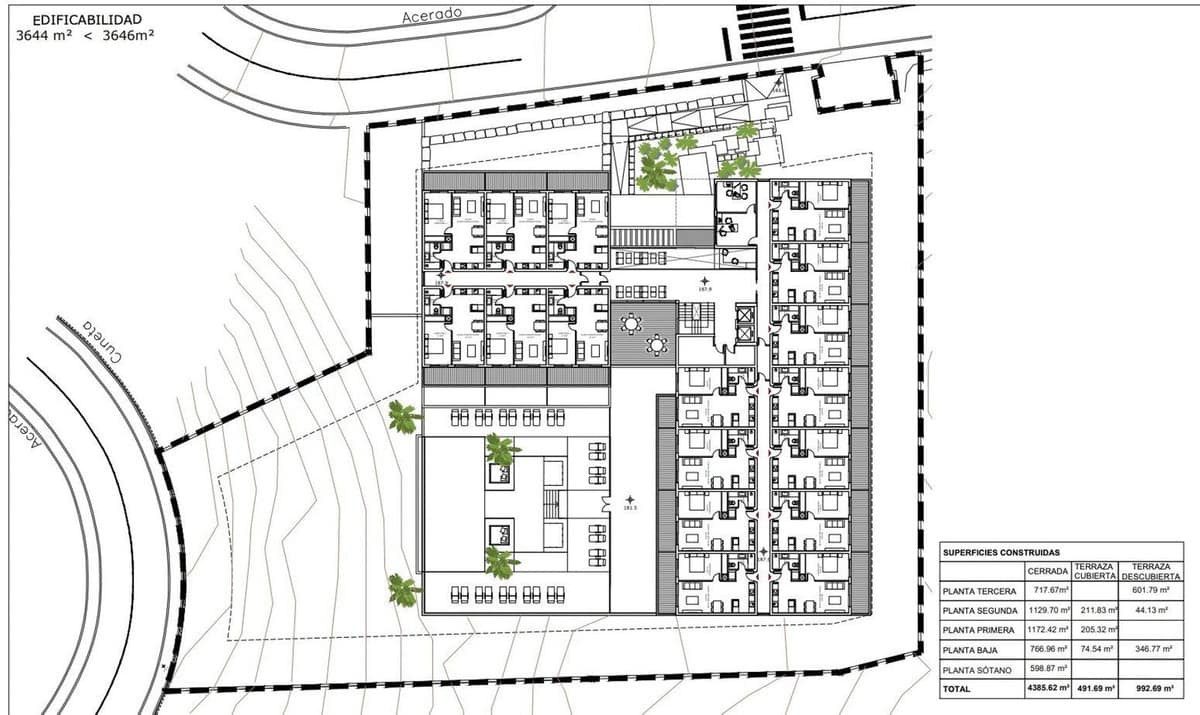
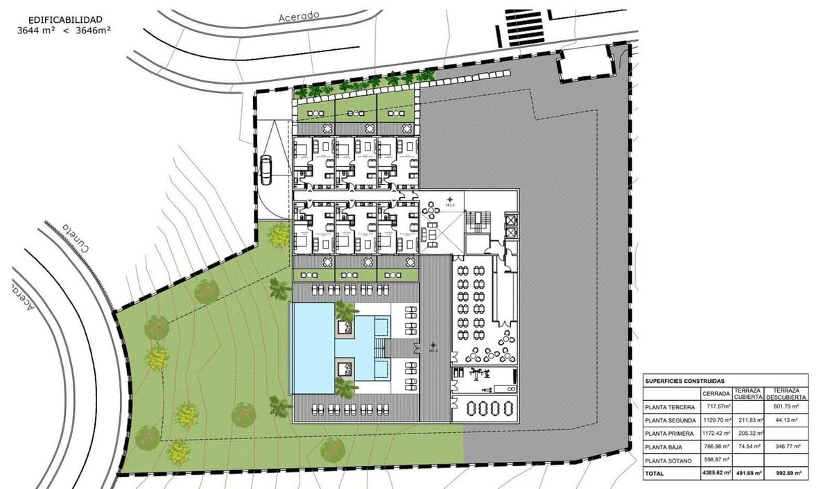
  • Wonen m² 3650 m²

Uitstekende investeringskans: een kavel in La Cala Golf, strategisch gelegen naast de prestigieuze golfbaan.

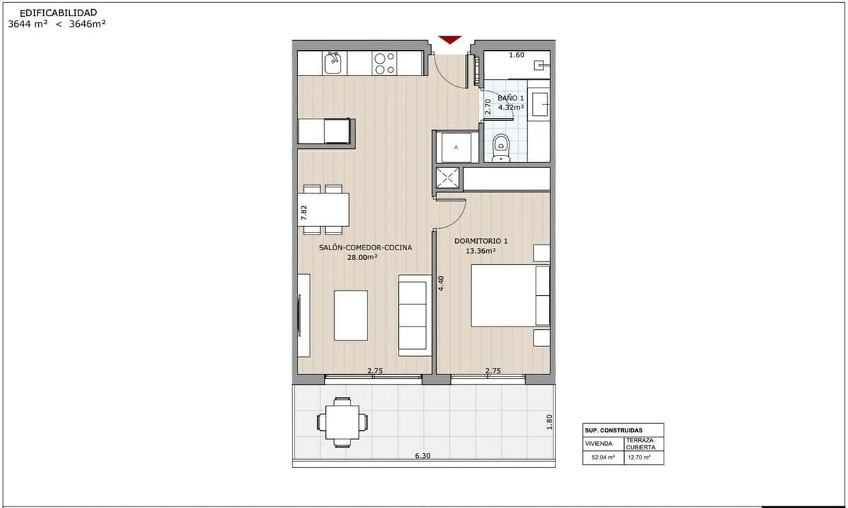
Dit kavel is bestemd voor Equipment/Commercial gebruik, met een totale oppervlakte van m² en 3.650 m² bouwruimte, met een haalbaar project voor de bouw van maximaal 51 toeristische appartementen. Daarnaast is er de mogelijkheid om deze appartementen individueel te verkopen aan investeerders via aandelen, met volledig beheer door een touroperator.

De locatie biedt veelzijdigheid en is ook geschikt voor andere gevraagde voorzieningen in de omgeving, zoals een supermarkt of een tankstation. Gegarandeerde haalbaarheid: een veilige investering in een van de meest veelbelovende gebieden van de Costa del Sol.

  • Referentie: R5182411
  • Vraagprijs: €1.597.000
  • Gebouwde oppervlak: 3.650 m²
  • Locatie: La Cala Golf, Málaga
  • Type: Kavel (Equipment/Commercial)

Voorzieningen

  • Dichtbij golf
  • Eerste lijn golf

Ontdek ook