Kavel met ontwerp en licentie in Puerto Banús (Atalaya de Rio Verde)

Te koop 1.980.000

Referentie: R4791613

  • Type Kavel
  • Slaapkamers 0
  • Badkamers 0
  • Wonen m² 746 m²

Kavel met ontwerp en licentie aan de bevoorrechte Rio Verde-zijde van Puerto Banús, op loopafstand van Puerto Banús in Atalaya de Rio Verde. Vraagprijs €1.980.000.

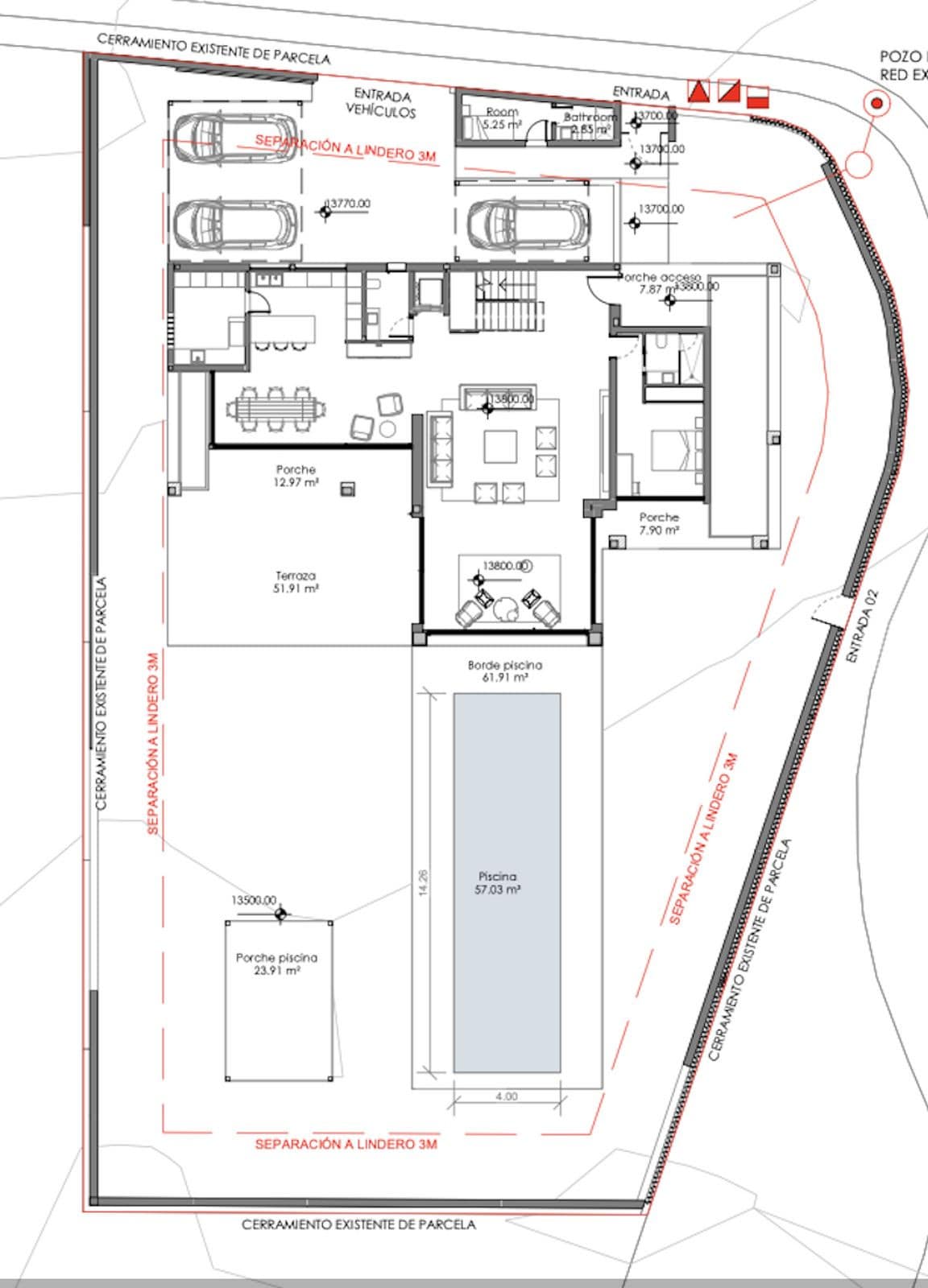
De huidige ontwerpvisie voorziet een villa met een bouwoppervlak van 746 m2, inclusief terrassen en zwembad. Het dakterras van 88 m2 is bereikbaar via een lift. De begane grond bedraagt 395 m2 en omvat onder meer een grote open leefruimte van 77 m2 met dubbele hoogte en grote ramen, een ruime open keuken van 43 m2 met aparte wasruimte, en één slaapkamer met eigen badkamer.

  • Op de eerste verdieping een galerij/mezzanine van 22 m2, master bedroom van 19 m2 met dressing van 15 m2 en en-suite badkamer van 12,5 m2, en een westelijk onbedekt terras van 16 m2.
  • Nog twee slaapkamers van 19 m2 elk met eigen en-suite badkamer; directe toegang tot het zuidelijke overdekte terras.
  • Kelder van 196 m2 met Engelse patios aan weerszijden, gym van 12,3 m2 en 45 m2 ruimte voor speelkamer/bar/wijnkelder; potentieel voor drie extra slaapkamers van 10 m2 met elk een eigen badkamer.
  • Zwembad van 4 x 14 m en een technische ruimte; ruimte voor meerdere invullingen op basis van toekomstige wensen.

Voorzieningen

  • Badkamer en-suite
  • Bijkeuken
  • Buitenwijk
  • Dichtbij haven
  • Dichtbij jachthaven
  • Dichtbij scholen
  • Dichtbij stad
  • Dichtbij zee
  • Dubbel glas
  • Gastenappartement
  • Glasvezel
  • Gym
  • Kelder
  • Lift
  • Overdekt terras
  • Privéterras
  • Solarium

Ontdek ook