PANORAMA-gebouw in La Cala del Moral, Rincón de la Victoria

Te koop 363.000

Referentie: R5252170

  • Type Kavel
  • Slaapkamers 0
  • Badkamers 0

Investeringskans: PANORAMA-gebouw in La Cala del Moral, Rincón de la Victoria (Málaga). Ligging nabij de zee: circa 320 meter. Mogelijkheid tot dubbel gebruik: residentieel of toeristisch/verhuur. De kavel ligt op Camino del Cementerio 19A; geconsolideerde stedelijke grond van 430.51 m². Mogelijk bouwvolume: vier verdiepingen boven de begane grond en een kelder (begane grond + 1 + penthouse).

De voorlopige studie ziet twee geoptimaliseerde scenario’s voor dit perceel (MC-1 classificatie):

  • Optie A – Toeristisch regime (2 sterren): 10 studio’s en 1 appartement; totale bebouwde oppervlakte 959.15 m²; voordeel: snelle terugverdienste via vakantieverhuur.
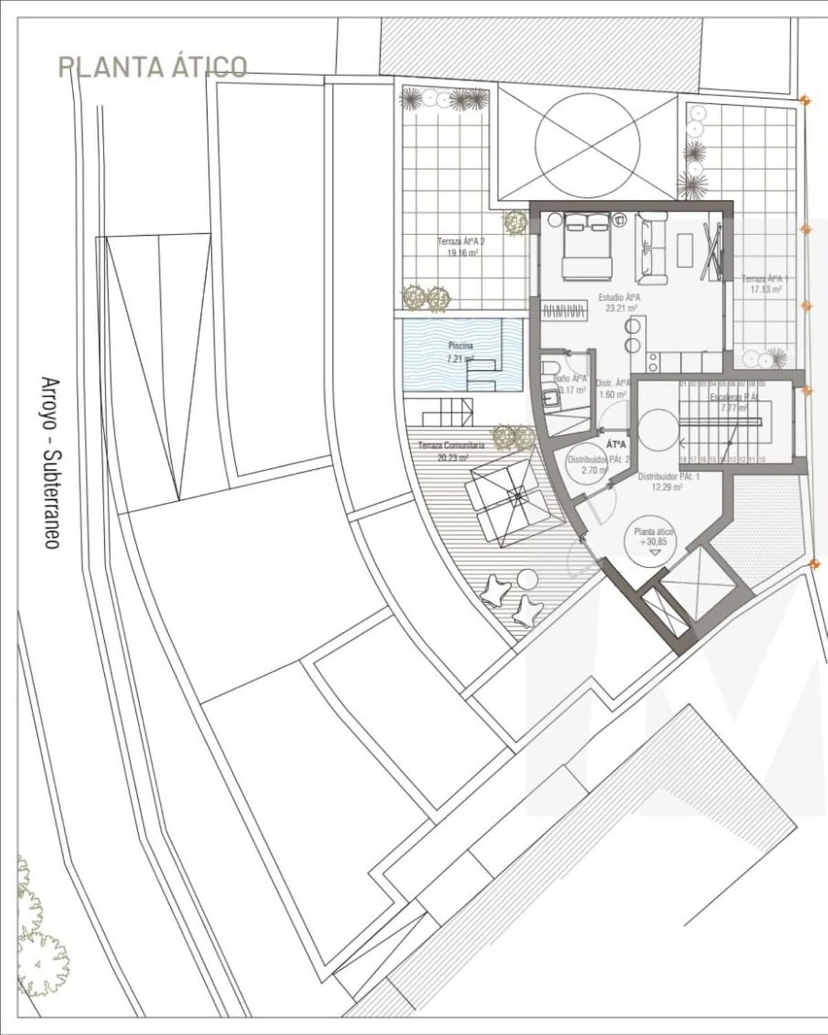
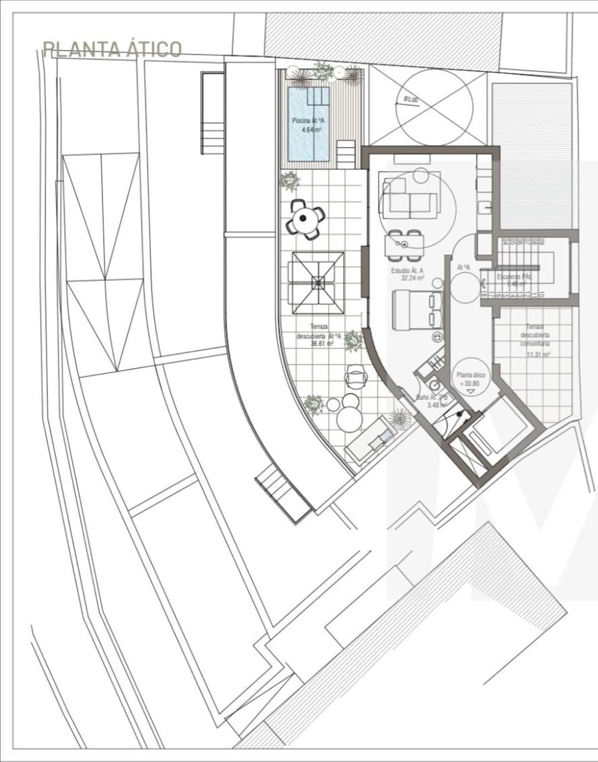
  • Optie B – Residentieel regime gericht op verkoop van hoogwaardige eenheden of lange termijn verhuur: meerdere woningen (op basis van studio’s); totale bebouwde oppervlakte 932.26 m²; premium features: ontwerpen met terrassen en een zwembad op de penthouse-verdieping.

Conclusie en contact: PANORAMA BUILDING biedt een lage-risico investering op geconsolideerde stedelijke grond, met een ligging 320 meter van zee en de flexibiliteit om het project in de meest rendabele vorm te ontwikkelen afhankelijk van marktomstandigheden. Referentie R5252170; prijs €363.000; gemiddelde prijs per m² in La Cala del Moral circa €2.300/m².

Voorzieningen

  • Commercieel gebied
  • Dichtbij scholen
  • Dichtbij winkels
  • Dichtbij zee
  • Stad

Ontdek ook